交野市・枚方市・寝屋川市の不動産情報
郡津4丁目
・価格
2,280万円
・土地面積
89.26㎡
・建物面積
95.22㎡
- ・物件所在地
- 交野市郡津4丁目
- ・構造
- 木造 地上2階建
- ・間取り
- 4LDK
- ・交通
- 京阪交野線「村野」駅より徒歩10分
- ・築年月日
- 平成4年3月
★令和7年11月 改装済み ★車庫付き ★駅まで徒歩10分 ★スーパーまで徒歩9分
この物件は改装済みです。改装内容はこのページの下部に記載しております。
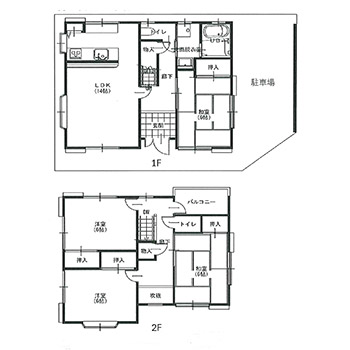
間取り図
下の縮小写真をクリックしてください
| |
内 容 |
| 改装項目 |
クローゼット新調・給湯器新調・1階2階窓新調 |
| システムキッチン(食洗機付)新調・トイレウォシュレット付新調・UB新調・洗面化粧台新調・洗濯パン新調 |
| 全室クロス貼替・和室聚楽塗装・畳新調・床フロアタイル仕上・カップボード新調・美装工事 他多数 |